Order Helpline 01452 713 400 Blog |  |  Login / Register

Manthorpe Tile Vent Non Profile Antique Red

(MANGTVNPAR)

£21.18 exc VAT £25.42 inc VAT

Brand:
Manthorpe
Lead Time:
2 Working Days
EAN:
5038108011661
Shipping Type:
Small_Packages
Shipping Cost:
£12.63£15.16
Discounted Shipping per additional Item:
£0.40£0.48

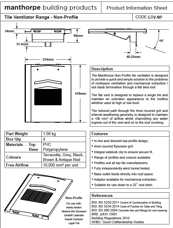
The Manthorpe Non-Profile in-line tile ventilator is designed to provide a quick and simple solution to the problems of roofspace ventilation and mechanical extraction / soil stack termination through a flat tiled roof.
The vent is designed to replace a single tile and maintain an unbroken appearance to the roofline whether used at high or low level.
The tortured path through the 4mm louvred grille and internal weathering geometry is designed to maintain a 10,000 mm² of airflow whilst channelling any water ingress out of the vent and on to the roof covering.
For use with; Marley Modern, Redland Stonewold, Sandtoft Caderdale,
Russell Grampian and Lagan Flat.